您好,欢迎启东市神舟润滑设备制造有限公司!

全国服务热线:0513-83227070

子页面大图广告
启东市神舟润滑设备制造有限公司

地址:启东市惠萍镇西侧工业园区

电话:0513-83227070
    0513-83797070

传真:0513-83223806

手机:13016796801
    13584729328

您当前的位置:首页 >> 电动加油泵(补脂泵) >> DJB-F200型电动加油泵(1MPa)JB/ZQ4543-97
 
DJB-F200型电动加油泵(1MPa)JB/ZQ4543-97

 加入时间:2018-5-29 9:25:01  

一、概述
  该电动泵适用于向电动干油站贮油器内充填润滑脂。该泵为直齿圆柱齿轮啮合的定量容积泵,分带贮油桶和不带桶两种结构,泵盖吸口具有网罩保护,工作可靠,维修方便。

二、技术参数

型   号

公称压力 MPa

加油量 L/h

电  动  机

贮油桶容积 L

重量 Kg

型  号

转速 r/min

电机功率 kW

DJB-F200

1(F)

200

Y90S-4-B5

1400

1.1

-

50

DJB-F200B

270

138

      输送介质为锥入度 265~385(25℃,150g)1/10mm 的润滑脂(NLGI0#~2#)和粘度等级大于 N120 的工业润滑油。

三、型号说明

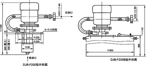
四、外形尺寸


五、使用说明

  1、自上而下为逆时针转向,不得搞错。
  2、使用的润滑脂必须干净,质地均匀,在规定牌号范围内。
  3、应定期清除泵盖网罩上吸附的杂质。
  4、不许在桶内无油脂的情况下空运转。