|
一、概述
DRB-L系列电动润滑泵适用于润滑点多,分布范围广,给油频率高的双线式干油集中润滑系统。通过双线分配器 向润滑部位供送润滑脂,可满足各种机器设备的需要,对于大型机组和生产线尤为适宜。
该系列电动润滑泵可组成双线环式集中润滑系统,即系统的主管路组成环状布置,由返回润滑泵的主管道末端的 系统压力来控制液压换向阀,使两条主管道交替地供送润滑脂的集中润滑系统;见外形图和外形尺寸表的规定。也可 组成双线终端式集中润滑系统,即由主管道末端的压力操纵阀来控制电磁换向阀交替地使两条主管道供送润滑脂的集 中润滑系统,也见外形图和外形尺寸的规定。
该系列电动润滑泵采用双柱塞机构,运转可靠,减速机构置于泵体内,结构紧凑,体积小,配以相应的电控箱可以实现自动控制。
二、技术参数
| 型号 |
工程压力
MPa |
公称流量
mL/min |
贮油器
容积L |
配管
方式 |
电机
型号 |
电动机
功率KW |
减速比 |
转速
r/min |
减速器润
滑油量L |
重量
Kg |
| 标准型号 |
引进型号 |
| DRB-L60Z-H |
U-25AL |
20 |
60 |
20 |
环式 |
A02-7124 |
0.37 |
1:15 |
100 |
1 |
140 |
| DRB-L60Z-Z |
U-25AE |
终端式 |
160 |
| DBR-L195Z-H |
U-4AL |
195 |
35 |
环式 |
Y802-4 |
0.75 |
1:20 |
75 |
2 |
210 |
| DRB-L195Z-Z |
U-4AE |
终端式 |
230 |
| DRB-L585Z-H |
U-5AL |
585 |
90 |
环式 |
Y90L-4 |
1.5 |
5 |
456 |
| DRB-L585Z-Z |
U-5AE |
终端式 |
416 |
使用介质为锥入度不低于265(25℃,150g)1/10mm的润滑脂(NLG10#~2#)。
三、型号说明

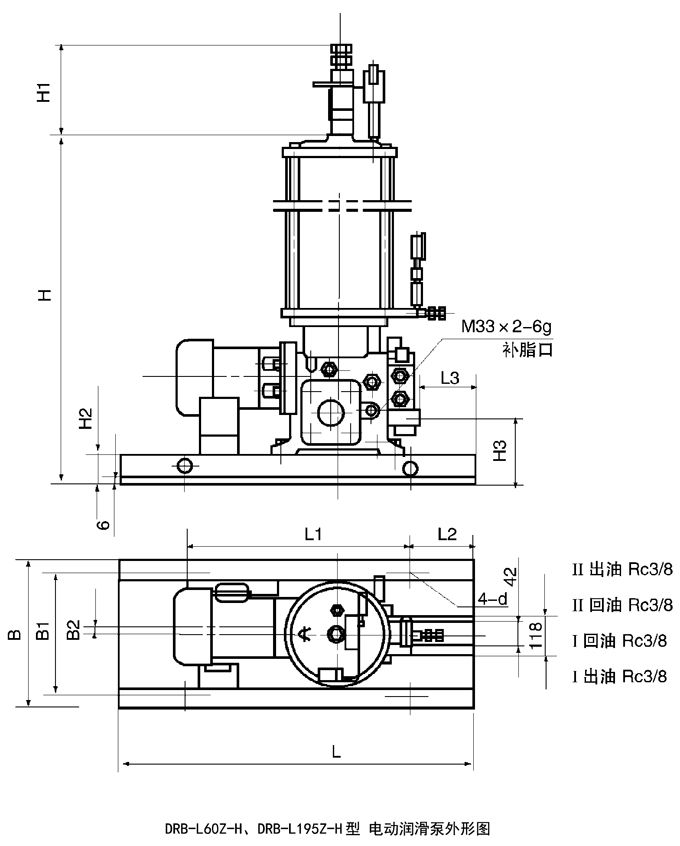
四、外形尺寸




|
型 号
|
L
|
B
|
H
|
L
|
L
|
L
|
B
|
B
|
H
|
H
|
H
|
H
|
d
|
|
DRB-L60Z-H
|
640
|
360
|
986
|
500
|
60
|
126
|
320
|
23
|
598
|
155
|
60
|
130
|
14
|
|
DRB-L60Z-Z
|
780
|
360
|
986
|
500
|
60
|
640
|
320
|
23
|
598
|
155
|
60
|
85
|
14
|
|
DRB-L195Z-H
|
800
|
452
|
1056
|
600
|
100
|
125
|
420
|
39
|
687
|
167
|
83
|
164
|
18
|
|
DRB-L195Z-Z
|
891
|
452
|
1056
|
600
|
100
|
800
|
420
|
39
|
687
|
167
|
83
|
108
|
18
|
五、原理图

六、接线指示

七、工作原理
该系列电动润滑泵由柱塞泵、贮油器、换向阀、电动机等部分组成。柱塞泵在电动机的驱动下,从贮油器吸入润滑脂,压送到换向阀,通过换向阀交替地沿两个出油口输送出去,当一个出油口压送润滑脂时,另一出油口与贮油器 接通卸荷。
环式结构电动润滑泵配用液压换向阀,有四个接口,外接两根供油主管分别由两根供油管引回的回油管,依靠回油管内油脂的油压推动换向阀换向。
终端式结构电动润滑泵配用电磁换向阀,有二个接口,外接二根供油主管,依靠电磁铁的得失电实现换向供油。 柱塞泵换向阀的动作原理详见使用说明书。
八、使用说明
1、该系列电动润滑泵应安装在环境温度合适,灰尘少,振动小,便于调整、检查、维护保养及补脂方便的地方并 且尽可能布置在系统的中心位置,缩短系统配管长度,保持最低压力降,使泵能产生足以克服润滑点阻力的压力。
2、使用前先向柱塞泵的减速腔内加入N220的工业齿轮油至油标规定液面。
3、向贮油器内补脂使用DJB-V70型电动加油泵从润滑泵的补给口补进,使用的润滑脂应清洁,不允许夹杂有污物。
4、润滑泵的回转方向是单向的,使用时必须按电机上旋向牌规定的旋向接线使用。
5、泵溢流阀的标准设定压力为23MPa,可以在0〜20MPa范围内任意调节,在使用时不允许超过泵公称压力的115% (23MPa)。
6、环式润滑泵的液压换向阀的设定压力按5MPa调定。
7、该系列电动润滑泵为室内安装型,在室外或环境恶劣的场合使用时,必须采取防护措施。
九、订货须知
1、本系列电动润滑泵配用以下四种形式标准电控箱,可根据不同控制要求选择。
1.1DEA-2E型终端式电控箱
1.2DEA-2L型环式电控箱
1.3R1902型环式带补脂控制电控箱
1.4R1904型终端式带补脂控制电控箱
2、本系列电动润滑泵分部件订购按下表选型
|
泵 型 号
|
柱塞泵型号
|
换向阀型号
|
溢流阀型号
|
|
标准型号
|
引进型号
|
标准型号
|
引进型号
|
|
DRB-L60Z-H
|
U-25AL
|
P-25A
|
YHF-L2
|
RV-4U2
|
JR-G01-3L
|
|
DRB-L60Z-Z
|
U-25AE
|
DEF-10
|
SV-32
|
|
DRB-L195Z-H
|
U-4AL
|
P-40A
|
YHF-L2
|
RV-4U2
|
|
DRB-L195Z-Z
|
U-4AE
|
DEF-10
|
SV-32
|
|
DRB-L585Z-H
|
U-5AL
|
P-50A
|
YHF-L1
|
RV-3
|
JR-T02-3L
|
|
DRB-L585Z-Z
|
U-5AE
|
DEF-10
|
SV-32
|
3、用户如有其它特殊要求可在合同中注明,本厂可为用户设计制造。 |