一、概述
稀油站是稀油循环系统的心脏,用来将润滑油液强制地压送到机器的摩擦部位。在相对运动的机器零件间形成油膜,减少零件的摩擦、磨损,同时对摩擦部位进行冲洗,并带走摩擦产生的热量,保证机器正常运转,延长机器使用寿命。
稀油站由油站、仪表盘和电气控制箱三部分组成。
它主要适用于冶金、矿山、锻压、电力、化工、轻工、水泥、港口等机械设备的稀油循环润滑系统中,通常安装在机器附近的地下油库或地坑中。
稀油站工作介质粘度等级为N22~N320的工业润滑油,公称压力为0.4MPa,过滤精度0.08~0.12mm;冷却水温≤28℃;冷却水压力0.2~0.3MPa;冷却器进油温度为50℃,温降7~8℃;使用蒸汽加热时蒸汽压力为0.2~0.4MPa。
二、技术参数
|
型 号
|
XYZ
-6※
|
XYZ
-10※
|
XYZ
-16※
|
XYZ
-25※
|
XYZ
-40※
|
XYZ
-63※
|
XYZ
-100※
|
XYZ
-125※
|
XYZ
-250※
|
XYZ
-400※
|
XYZ
-630※
|
XYZ
-1000※
|
|
供油压力(MPa)
|
≤0.4
|
|
公称流量(L/min)
|
6
|
10
|
16
|
25
|
40
|
63
|
100
|
125
|
250
|
400
|
630
|
1000
|
|
供油温度(℃)
|
40±3
|
|
油箱容积( )
|
0.15
|
0.63
|
1
|
1.6
|
6.3
|
10
|
16
|
25
|
|
过滤面积( )
|
0.05
|
0.13
|
0.19
|
0.4
|
0.52
|
0.83
|
1.31
|
2.2
|
|
换热面积( )
|
0.6
|
3
|
4
|
6
|
24
|
35
|
50
|
80
|
|
冷却水耗量( /h)
|
0.36
|
0.6
|
1
|
1.5
|
3.6
|
5.7
|
9
|
11.25
|
12~22.5
|
20~36
|
30~56
|
60~90
|
|
电加热器
|
功率(kw)
|
1-2
|
12
|
12
|
24
|
/
|
/
|
/
|
/
|
|
电压(V)
|
220
|
|
蒸汽耗量(kg/h)
|
/
|
/
|
/
|
/
|
100
|
160
|
250
|
400
|
|
电动机
|
型号
|
A02-8014-B14
|
Y90S-4-V1
|
Y100L1-4-V1
|
Y112M-4-V1
|
Y132S-4
|
Y132M-4
|
Y160L-4
|
Y180L-4
|
|
功率(kw)
|
0.55
|
1.1
|
2.2
|
4
|
5.5
|
7.5
|
15
|
22
|
|
转速(r/min)
|
1400
|
1400
|
1430
|
1440
|
1440
|
1440
|
1460
|
1470
|
|
重 量(kg)
|
308
|
309
|
628
|
629
|
840
|
842
|
1260
|
1262
|
3980
|
5418
|
8750
|
12096
|
三、型号说明

四、工作原理
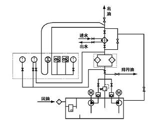
工作时,油液由齿轮泵从油箱吸出,经单向阀、双筒网式油滤器、列管式油冷却器,被直接送到设备的润滑点。油站的最高供油压力为0.4MPa,最低供油压力为0.1MPa,根据润滑点的要求,通过调节安全阀确定使用压力,当油站的工作压力超过安全阀的调定压力时,安全阀将自动打开,多余的油液即流回油箱。正常工作时,油泵一台工作、一台备用。有时设备耗油量由于某种原因需要增加时,则系统压力下降,当降到调定值时,通过压力控制器调节,备用泵自动开启,与工作泵一起工作,直到压力正常时,备用泵自动停止。若油压继续下降到另一调定值时,则通过另一压力控制器调节,发出事故警报。
双筒网片式油滤器的一组过滤滤芯工作,一组过滤滤芯备用,在进出口处接有双针双管压力表,当压差超过0.05MPa(≥250L/min稀油站为0.05~0.1MPa),人工切换到备用滤芯工作,取出原工作滤芯,清洗或更换滤片。
油箱装有电接点温度计,根据供油温度要求,调定最高和最低两个界限。在低温时,信号灯亮,人工开启加热器进行加热,当油温升至高点时,自动切断加热器,停止加热;供油口温度高时,报警并开冷却器。
≥250L/min稀油站,采用蒸汽加热油箱中的润滑油,仪表盘尚多一检测冷却器进出水管压差的仪表,其主要部件均另外装于基础上;而≤125L/min稀油站的全部部件都装在油箱上,为整体式结构。
五、结构特点
1)设有备用油泵,可保证向润滑点连续供油。
2)过滤器放在冷却器之前,可提高过滤和通过能力;更适合较高粘度的润滑介质。
3)采用双筒式过滤器,可不停车进行滤芯的清洗和更换。
4)采用列管式油冷却器,冷却效果好,阻力小,便于维修。
5)回油设有磁网过滤,可吸附清除油液中铁质微粒,保证油液清洁度及提高润滑部件寿命。
6)配有仪表盘和电控箱,观察运行参数方便,可实现自动控制和事故报警。
六、原理图
●XYZ-6G~10G
●XYZ-16~125、XYZ-16G~125G
●XYZ-250~1000、XYZ-250G~1000G、XYZ-250A~1000A
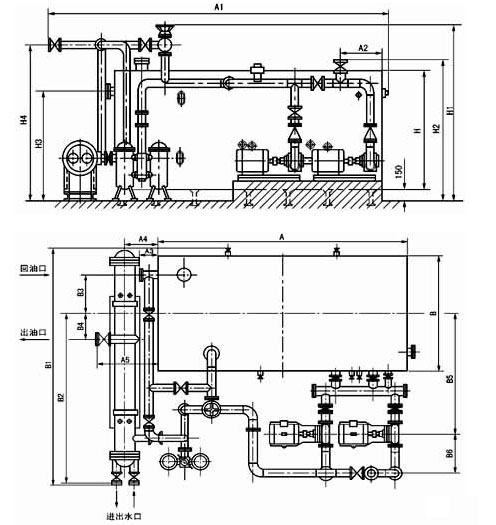
七、外形尺寸
XYZ-6G~125G稀油站外形图及尺寸表

|
型 号
|
DN
|
d
|
A
|
B
|
H
|
L
|
L1
|
B1
|
B2
|
B3
|
d1
|
E
|
S
|
N
|
H1
|
H2
|
H3
|
H4
|
H5
|
H6
|
H7
|
|
XYZ-6G
|
25
|
G1/2
|
700
|
550
|
450
|
1010
|
190
|
255
|
220
|
730
|
G3/4
|
213
|
150
|
0
|
965
|
550
|
268
|
80
|
268
|
580
|
380
|
|
XYZ-10G
|
|
XYZ-16G
|
50
|
G1
|
1000
|
900
|
700
|
1505
|
256
|
410
|
363
|
1130
|
G1
|
285
|
175
|
35
|
1310
|
855
|
350
|
130
|
350
|
875
|
580
|
|
XYZ-25G
|
|
XYZ-40G
|
50
|
G1 1/4
|
1200
|
1000
|
850
|
1700
|
235
|
470
|
390
|
1230
|
G1 1/4
|
290
|
248
|
60
|
1460
|
990
|
355
|
160
|
355
|
1035
|
740
|
|
XYZ-63G
|
|
XYZ-100G
|
80
|
G1 1/2
|
1500
|
1200
|
950
|
2300
|
390
|
560
|
444
|
1430
|
G1 1/4
|
305
|
170
|
100
|
1600
|
978
|
355
|
180
|
375
|
1095
|
820
|
|
XYZ-125G
|
XYZ-250G~1000G稀油站外形图及尺寸表
|
型 号
|
回油
通径
|
出油
通径
|
进出水口
|
A
|
B
|
H
|
A1
|
A2
|
A3
|
A4
|
A5
|
|
XYZ-250G
|
125
|
65
|
65
|
3300
|
1600
|
1200
|
4295
|
442
|
100
|
560
|
945
|
|
XYZ-400G
|
150
|
80
|
100
|
3600
|
2000
|
1500
|
4655
|
492
|
100
|
572
|
800
|
|
XYZ-630G
|
200
|
100
|
100
|
4300
|
2600
|
1600
|
5900
|
560
|
170
|
750
|
1445
|
|
XYZ-1000G
|
250
|
125
|
200
|
5300
|
2600
|
1900
|
7360
|
630
|
235
|
1285
|
2000
|
(续上表)
|
型 号
|
B1
|
B2
|
B3
|
B4
|
B5
|
B6
|
H1
|
H2
|
H3
|
H4
|
蒸汽
接口
|
|
XYZ-250G
|
3235
|
2355
|
570
|
364
|
1960
|
300
|
2172
|
1600
|
1050
|
1850
|
G1
|
|
XYZ-400G
|
3690
|
2650
|
750
|
907
|
2230
|
300
|
2275
|
1750
|
1300
|
1965
|
|
XYZ-630G
|
4672
|
3017
|
1020
|
320
|
2700
|
390
|
2425
|
2067
|
1400
|
2080
|
|
XYZ-1000G
|
4803
|
3207
|
1000
|
500
|
2720
|
450
|
2755
|
2285
|
1680
|
2480
|
|